Beschrijving
Uitstekende luxe huizen met een prachtig uitzicht op zee! Villa's met 4 ruime slaapkamers, 4 badkamers en suite, toilet, moderne keuken van open stijl ingericht en uitgerust, woonkamer met open haard en uitgang naar ruim terras met infinity pool en prachtig uitzicht op zee en de bergen, Airconditioning, Verwarming, eigen Lift, Marmeren vloeren, garage voor 2 auto's. Sociale club en community Gym. Ideaal als een gezinswoning, op 5 minuten van het strand en de internationale school.
kenmerken
Algemeen
onafhankelijk
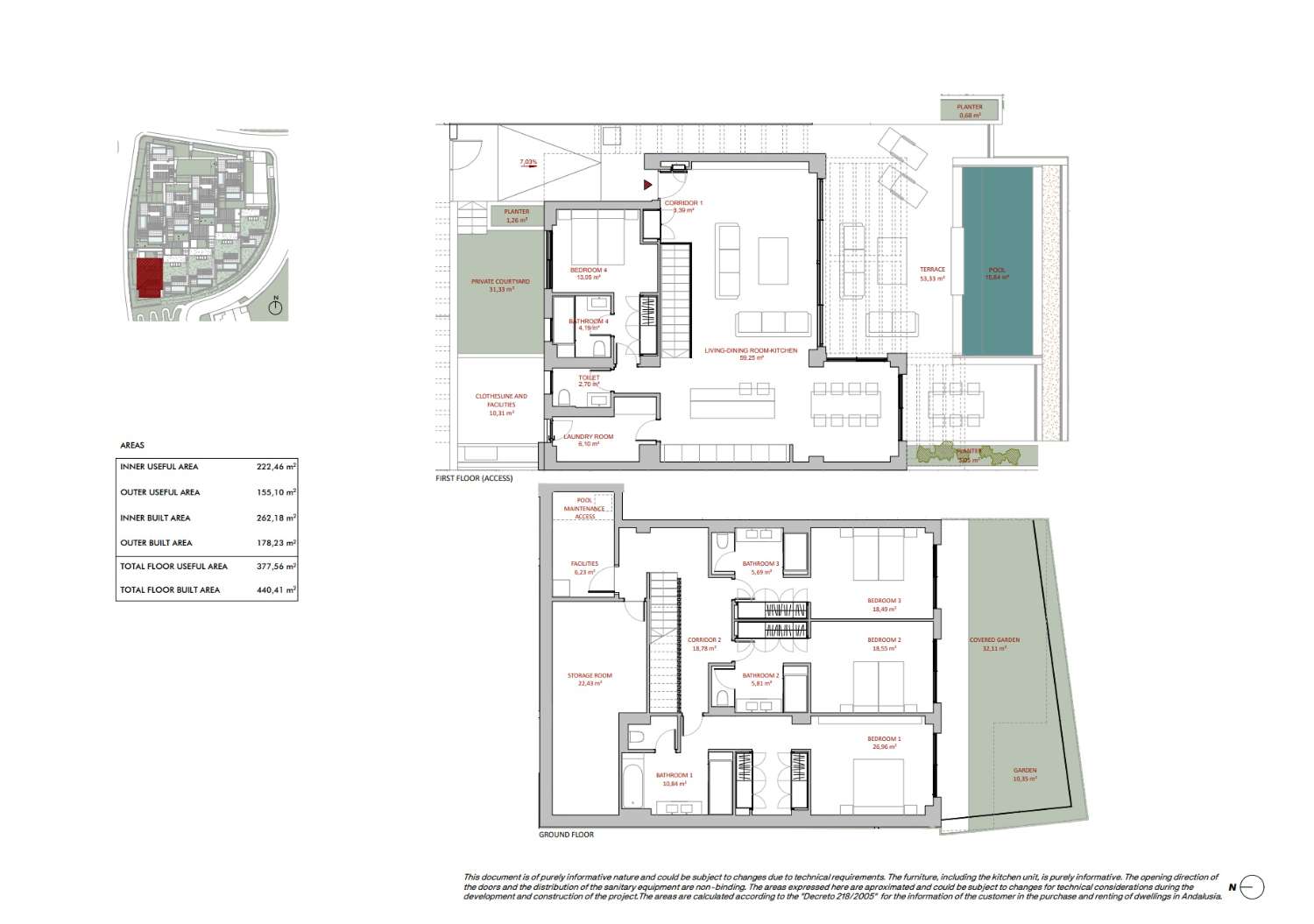
2 Vloeren
1 woonkamer
4 Slaapkamers
4 Badkamers
1 WC
4 Ingebouwde kledingkast
4 terrassen (53 m2)
Bergplaats
Wasserij
Kleedkamer
Oppervlakken
Bebouwde: 440
m2
Nuttig: 377
m2
land
Bouwjaar: 2025
in aanbouw
Uitrusting
Zwembad
Tuinen
vloerverwarming
Ingerichte keuken
Keukenapparatuur
Airconditioning / Installatie
Telefoon met video-invoer
Gymnasium
Diensten
water diensten
Elektriciteitsdienst
Kwaliteiten
Keramische vloeren
Dubbel glas
Aluminium timmerwerk
Veiligheidsslot
Prijs
1.850.000 €
4.205 €
Energie certificaat
|
CALIFICACIÓN ENERGÉTICA
|
Consumo energía kW h / m2 año |
Emisiones CO2 kg CO2 / m2 año |
|---|---|---|
| A | ||
| B | ||
| C | ||
| D | ||
| E | ||
| F | ||
| G |








